


Listing Description
Brick & Tile Starter with Yard Space
23 Avalon Court, Otahuhu, Auckland City, Auckland
To be sold by auction on 3 Dec, 11:00 am
Details
| Attribute | Value |
|---|---|
| Property type | House |
| Parking | 1 garage spaces |
| Property ID# | JMA149 |
| Agency reference | MKU42058 |
Description
If you're looking for value, convenience, and low-maintenance living, this tidy brick-and-tile home in Otahuhu is the one to act on. Set in a safe, quiet complex and minutes from the motorway, Middlemore, town centre, Sylvia Park, and Gurdwara Sahib temple - the location does all the work for you.
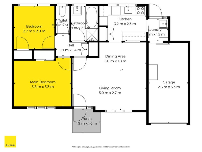
Inside, the home is warm, clean, and easy to maintain. Two good-sized bedrooms, open-plan living, an internal-access garage, and a heat pump make everyday life simple. It's also fully Healthy Homes compliant, ticking the boxes for both homeowners and investors.
The private, fully fenced backyard is a real bonus - ideal for kids, pets, BBQs, or relaxed weekend living. Add off-street parking, and you've got a smart, practical package that's ready to move into or rent out immediately.
With the owner already moved on, this is a straightforward, no-fuss opportunity worth jumping on.
Key Features:
- Brick & tile, low-maintenance home
- 2 bedrooms + internal-access garage
- Private, fully fenced backyard
- Heat pump + Healthy Homes compliant
- Safe, quiet complex
- Off-street parking
- Minutes to motorway, shops & Middlemore
Call Aramiha Nathan on 021 574 270 or Gin T 021 111 7771 today to view.
CONJUNCTIONS WELCOME BY ALL AGENCIES
Auction (Unless Sold Prior) 03/12/2025 @ 11.00am In Rooms: Ray White Manukau
Disclaimer - This property is being sold by auction and therefore a price guide can not be provided. The website may have filtered the property into a price bracket for website functionality purposes. All prospective purchasers shall complete their own due diligence, seek legal and expert advice, and satisfy themselves with respect to information supplied during the marketing of this property, including but not limited to: the floor and land sizes, boundary lines, underground services, along with any scheme plans or consents.
Open home times
Property Files

Discover more about this property.
Request the files from Gin.
Agent's details








