


Listing Description
Last but best! Water views at Freehold entry level
7/84 Ireland Road, Panmure, Auckland City, Auckland
Price by negotiation
Details
| Attribute | Value |
|---|---|
| Property type | Townhouse |
| Agency reference | 1755175 |
| Broadband in the area |
Description
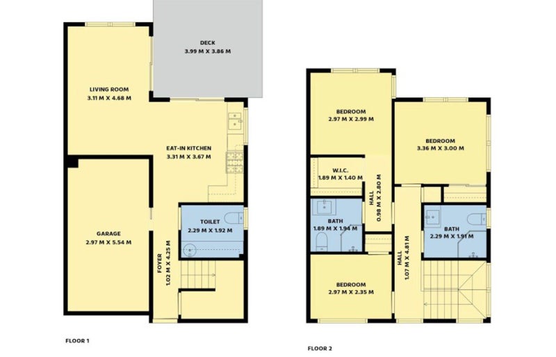
Secure the last available home in this boutique development - an entry-level new build offering uplifting water views, contemporary style and exceptional value in one of Panmure’s fastest-growing areas. Designed for effortless modern living, this freehold property delivers low-maintenance comfort without compromising on quality.
The bright open-plan layout flows to a sun-soaked deck and fenced lawn, perfectly framed by elevated water views. Upstairs, the master suite features an ensuite and walk-in wardrobe, supported by well-sized secondary rooms and stylish finishes throughout. With internal-access garaging, extra parking, and a fully fenced section, everyday convenience is built in.
Moments from the Panmure Transport Hub, lakeside walking tracks, Sylvia Park and local eateries - this location offers lifestyle, connectivity and strong future growth.
Key Features
- Freehold — no Body Corp
- 154sqm section / 121sqm floor area (approx.)
- Master suite with ensuite + walk-in wardrobe
- Open-plan living with great indoor–outdoor flow
- Internal-access garage + off-street parking
- 10-Year Halo 10-year Residential Guarantee
- Fenced, low-maintenance site
- Walk to Panmure Transport Hub & lakeside paths
- Minutes to Sylvia Park and local amenities
Absentee vendors instruct present all serious offer; this immaculate home will be sold! Inspect Now!
Open home times
- to
Property Files

Discover more about this property.
Request the files from Jed.
Agent's details
























