


Listing Description
Brand New Sanctuary with Stunning Views
41 Seaside Avenue, Waterview, Auckland City, Auckland
To be sold by auction on 2 Dec, 4:00 pm
Details
| Attribute | Value |
|---|---|
| Property type | House |
| Parking | Internal Access Garaging plus further off street parking |
| Agency reference | ELL34624 |
| Broadband in the area |
Description
Tucked away privately in a prime position on the edge of the coastline, this stunning brand new family home is something truly special. The large picture windows offer a spectacular combination of bush, park, and water views, to create a unique urban sanctuary that is very easy to fall in love with.
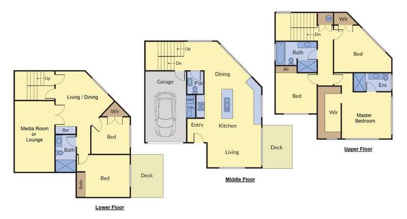
The spacious and flexible layout offers 5 bedrooms, 3.5 bathrooms, and 3 living spaces, with the option of having the downstairs area set up as a separate accommodation wing, including 2 double bedrooms, bathroom, living, dining, and bar/kitchenette area. It even has its own media room which can also double as a formal lounge.
Built from top to toe with family and entertaining in mind, this really is the epitome of luxury and style. It features:
- An amazing outlook, including stunning bush, park, and water views
- Expansive living setup combined with an upmarket kitchen and lovely sundeck
- Sunny westerly aspect means this home is bathed in afternoon sun and natural light
- Surrounded by lush greenery, reserve, and the coastline; this truly is an urban sanctuary
- Five bedrooms, 3.5 bathrooms, and 3 living spaces, including a dedicated media room
- Separate accommodation option, including 2 beds, bath, living, dining and bar (kitchenette)
- Impressive master bedroom complete with ensuite, walk in wardrobe, and water view
- Internal access garage, plus extra parking for at least two more cars
Outstanding location, positioned on the edge of the coastline, and right next to the local reserve, providing your choice of coastal walkways, parks, and cycleways. Only minutes from motorway access, you have easy access into the Auckland CBD too.
Homes of this calibre and quality are few and far between in this area, and it may be a while till another like this comes up. This one is sure to be snapped up quick, so call us now to set up a private appointment to view, or make sure you get to this weekends open home!
Open home times
Property Files

Discover more about this property.
Request the files from James.
Agent's details







































