


Listing Description
Where Character Meets Modern
1B Park Avenue, Tuakau, Franklin, Auckland
Details
| Attribute | Value |
|---|---|
| Property type | House |
| Capital value (CV) | $670,000 |
| Parking | 1 garage spaces |
| Agency reference | TUA30552 |
Description
Welcome to 1B Park Avenue, Tuakau - a beautifully refreshed home that blends modern upgrades with timeless character, delivering a sense of space, light, and effortless living from the moment you step inside. Freshly renovated throughout, all the hard work has been done, allowing you to simply move in and enjoy.
The home immediately impresses with its grand proportions and high-stud ceilings, enhancing the feeling of openness while capturing stunning elevated views that create a constantly changing backdrop. Natural light floods the living spaces, adding to the warm yet airy atmosphere.
At the centre of the home is a stylish, modernised kitchen complete with quality appliances, seamlessly connecting through to the dining and expansive living area. This layout has been thoughtfully designed to maximise both everyday living and entertaining, with an easy indoor-outdoor flow.
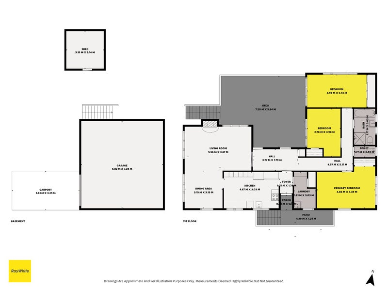
Three generously sized bedrooms provide comfortable accommodation, supported by a well-appointed bathroom, while the added convenience of a second toilet enhances functionality for busy households. All spaces are finished with a cohesive blend of contemporary touches and subtle character features that give the home its unique appeal.
Step outside and you'll find a welcoming deck and outdoor entertaining area, perfectly positioned to soak up the sun and take in the outlook, while enjoying truly stunning sunsets that make this space something special at the end of each day. Set on a spacious 529sqm (more or less) section, there's room to relax, garden, or add further value over time.
Completing the package is a single garage, off-street parking, separate laundry, and the added benefit of two toilets, ensuring practicality matches the home's style.
Positioned in a convenient location close to local amenities, this is a property that offers presence, comfort, and lifestyle in equal measure - a modern home with character, space, and views, ready for its next chapter.
Open home times
- to
Property Files

Discover more about this property.
Request the files from Adrian.
Local Schools
While we've done our best to correctly list schools in this location, school zone information may not be exact, so please double check with the school.
Agent's details























