


Listing Description
CLASSIC CHARM, CONTEMPORARY COMFORT
3/170 Great South Road, Drury, Papakura, Auckland
Price by negotiation
Details
| Attribute | Value |
|---|---|
| Property type | House |
| Capital value (CV) | $510,000 |
| Parking | Carport |
| Agency reference | PUK32301 |
| Broadband in the area |
Description
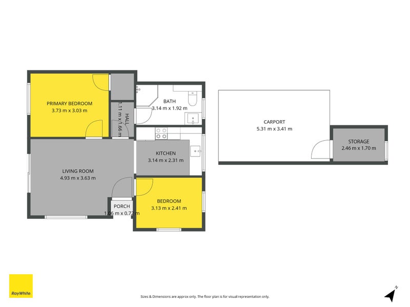
Step into timeless elegance with this beautiful 1940s two-bedroom home, perfectly positioned in sought-after Drury. A seamless blend of vintage charm and modern living, offering the ideal lifestyle for those seeking both character and practicality.
The open-plan living area flows effortlessly to a stunning private patio and expansive gardens-your own personal oasis ideal for entertaining or quiet relaxation. Inside, you'll find modern comforts that make everyday living a pleasure:
- Double glazing
- Heatpump
- Ventilation system
Outside, practical storage and parking solutions cater to all your needs:
- Carport for convenient covered parking
- Lock-up shed for storage
- Dedicated car space
Drury is experiencing exciting growth and revitalization, and this property puts you right at the heart of it all. You'll enjoy walking distance to the new developments coming to the area, including a shopping mall and Costco. The new Drury Train Station is currently under construction and due to open in 2026. Easy motorway access makes commuting effortless for those working in the city by car.
Seriously for sale by owners who have outgrown the space after enjoying 7 years here. If you can't make it to an open home, contact Josh or Laura for a private viewing that suits you!
Open home times
Property Files

Discover more about this property.
Request the files from Josh.
Agent's details

Josh Wrightson





















