


Listing Description
Modern Luxury Meets Parkside Living
26F Brennan Avenue, Te Atatu Peninsula, Waitakere City, Auckland
To be sold by deadline sale (by 10 Mar)
Details
| Attribute | Value |
|---|---|
| Property type | Townhouse |
| Capital value (CV) | $1,050,000 |
| Parking | Off Street Parking |
| Agency reference | TPN30174 |
Description
Step into this 2024-built, architecturally designed townhouse and experience parkside living at its finest. Positioned at the end of the complex, it enjoys abundant natural light and up to three dedicated off-street carparks at the front. On one side a private courtyard provides a serene retreat, while on the other, Durham Green unfolds just steps away. A small lawn area around the home is easy to care for, leaving more time to enjoy the outdoors. Freehold with no body corporate.
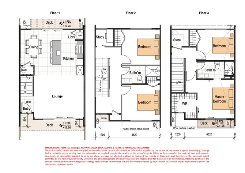
Spanning a generous 150 sqm (more or less) across three thoughtfully designed levels, the interior balances style, space, and functionality. The ground floor features open-plan living, dining, and a kitchen with stone benchtops, a large island, and Bosch appliances. Polished concrete floors add style and practicality, while indoor and outdoor access ensures seamless connection to courtyard and park.
The second floor hosts two bedrooms and a study, serviced by a beautifully finished bathroom. The top floor contains two further bedrooms, including the master with a walk-in wardrobe and a balcony capturing elevated views over Durham Green. A semi-ensuite provides access from the hallway and master bedroom. A dedicated storage room offers a clutter-free lifestyle.
Built to last, the exterior features premium architectural aluminium with a rich timber grain offering the timeless warmth of natural timber with enduring durability. Mixed cladding throughout adds a masterclass in modern design and lasting curb appeal. Fully insulated and double-glazed, the home also includes a heat pump, heated towel rails, thermally backed curtains, and premium NZ wool carpet for comfort and energy efficiency.
Designed for modern family life, this townhouse delivers generous living, thoughtful layout, and a rare parkside connection in one of Te Atatu Peninsula's most desirable locations. Sunlight, space, and convenience combine to create a home that is both beautiful and effortlessly functional.
Open home times
Property Files

Discover more about this property.
Request the files from John.
Local Schools
While we've done our best to correctly list schools in this location, school zone information may not be exact, so please double check with the school.
Agent's details






















