


Listing Description
Beachfront living with $40k income stream built in
2A Taylor Road, Papamoa Beach, Tauranga, Bay Of Plenty
Details
| Attribute | Value |
|---|---|
| Property type | House |
| Capital value (CV) | $1,870,000 |
| Parking | 2 car garaging |
| Agency reference | 2610042 |
| Broadband in the area |
Description
Positioned on Taylor Road - one of the most desirable streets in Papamoa Beach - this is beachside living with a powerful financial advantage built in.
And when we say close to the beach, we mean it. Just 10 metres from your gate to beach access, giving you effortless connection to the sand and sea. Morning swims, sunset strolls, salt air before coffee - this is everyday life here. But what truly sets this home apart is what awaits on the ground floor.
Income opportunity without compromise Cleverly designed to operate independently from the main residence, the lower-level functions as a stylish, fully self-contained two-bedroom unit - complete with its own bathroom, kitchenette, separate lounge, private outdoor patio, and its own external access.
Beautifully presented and furnished, this space is perfectly suited to Airbnb, short-stay accommodation, or extended guest living, with an estimated net return of $35,000–$40,000 + GST per annum.
When closed off, it becomes a private, income-producing retreat. When opened, it seamlessly integrates back into the main home for family living. This is flexibility with genuine financial reward.
Guests or tenants enjoy privacy, thoughtful design, and a secluded spa-garden patio, while you benefit from a home that actively works for you.
Ground floor – flexible by design Step through the grand foyer from the internal-access double garage, and you immediately appreciate the intelligent layout. The garage includes the laundry and generous storage and, interestingly, was once the birthplace of the X-Lab fashion brand - a space that seems to inspire creativity and enterprise.
A built-in lift shaft is already in place, future-proofing the home for long-term accessibility between levels.
From the foyer, access the self-contained unit or open it to flow naturally into the rest of the home.
Second level – warmth, light and connection Upstairs, the heart of the home unfolds with an open-plan kitchen, dining and living, centred around a beautiful inbuilt gas fireplace. This level opens to an entertainer’s deck ideal for long lunches and summer evenings, with gentle peeps of the sea reminding you how close you are to the shore.
Two additional bedrooms and a family bathroom complete this welcoming level.
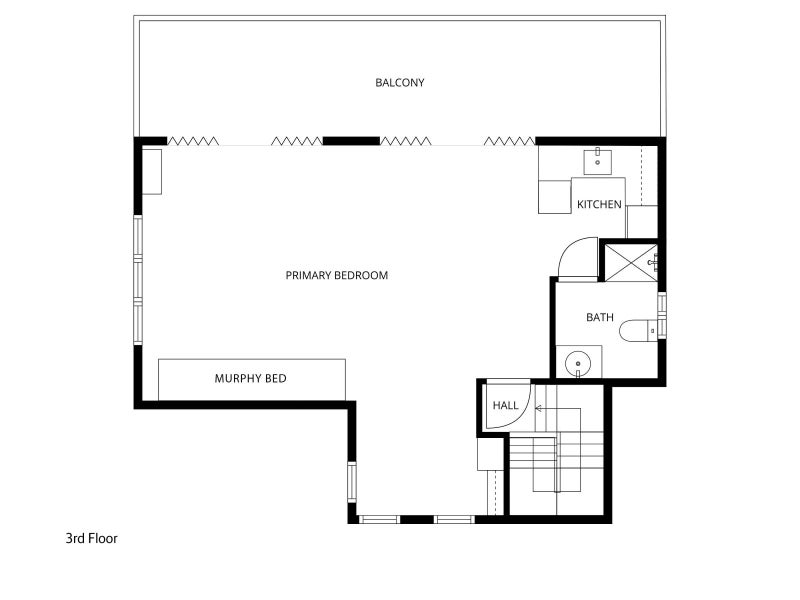
Third level – views, space and versatility The entire top floor is a spectacular elevated lounge capturing distant ocean views toward Motiti Island.
This level includes a third bathroom, kitchenette and bar area, study nook, and a cleverly hidden drop-down queen bed for extra guests. Step onto the viewing deck and take in the horizon - by day expansive and light-filled, by evening a private coastal sanctuary.
Practicality and peace of mind Constructed in 2004 with a plaster cavity system, the home reflects thoughtful design of its era. A builder’s report is available to provide transparency and reassurance.
The property is fully fenced for pets and peace of mind, and outdoor living features on every level - from the private spa garden below, to the entertainer’s deck, to the elevated viewing platform above.
A beachside home that pays you back This is more than a stunning three-level coastal residence. It’s a home with a ready-made income stream, genuine flexibility for extended family or guests, and future-proof design - all just steps from the sand on one of Papamoa’s premier streets. Move in. Host with ease. Let the downstairs work for you.
And step onto the beach whenever you feel like it.
Open home times
Property Files

Discover more about this property.
Request the files from Darren.
Local Schools
While we've done our best to correctly list schools in this location, school zone information may not be exact, so please double check with the school.













































