


Listing Description
A Home With Serious Side Hustles
241 Lake Terrace Road, Shirley, Christchurch City, Canterbury
Details
| Attribute | Value |
|---|---|
| Property type | House |
| Parking | 2 garage spaces |
| Agency reference | 1752905 |
| Broadband in the area |
Description
Auction on site Saturday 2nd May at 2.00 pm (unless sold prior)
The owners have bought. Now they need this one sold.
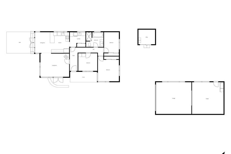
Step inside and you'll see why they loved it. Native timber floors run through the kitchen, laundry, and hallway. A renovated bathroom with a fully tiled shower and bath set in a tiled plinth. French doors opening onto a north-facing deck. A wood burner, two heat pumps, and a DVS system keeping things warm, dry, and free of condensation year-round.
Three bedrooms — all with built-in storage. A home that's ready to move into.
But walk out the back and the property changes register entirely.
Out back, there's a powered cabin separate from the house. Whether you work from home, run a business, or just need somewhere to contain your hobbies — it's a dedicated space that earns its keep.
Then there's the garage. Separate from the house, double-sized, with a mechanic's pit, attached workshop, and 15-amp power. The kind of setup serious enthusiasts spend years looking for.
– Renovated bathroom with tiled shower and bath – Natural timber floors in the hallway, kitchen and laundry – Quality carpet in the bedroom and living areas – French doors to north-facing deck – Wood burner, two heat pumps, DVS system – Ceiling, underfloor and partial wall insulation – Powered cabin — home office or studio – Double garage with attached workshop – Freehold, 809m² section
Raised from the street and setback from the road, the position gives you a natural vantage point over the neighbourhood without sacrificing privacy.
Horseshoe Lake Reserve is close for walks, runs, and weekend time outside. Christchurch Golf Course is just around the corner. The Palms and Home Base take care of everyday shopping — both within easy reach.
Everything you need under one roof, and then some. Get in touch for further info.
Open home times
Property Files

Discover more about this property.
Request the files from Caleb.
Local Schools
While we've done our best to correctly list schools in this location, school zone information may not be exact, so please double check with the school.
Agent's details
































