


Listing Description
More Than a House… It's Home
11 Matanui Street, Lincoln, Selwyn, Canterbury
Details
| Attribute | Value |
|---|---|
| Property type | House |
| Parking | 2 garage spaces |
| Property ID# | JSN263 |
Description
Some homes just have a feeling… and this is one of them. From the moment you step inside, you can tell this home has been thoughtfully designed for real living. Every space has been carefully considered to make everyday life easy, comfortable, and enjoyable. From the heart of the home with its open plan kitchen, walk-in pantry and inviting dining space, to the private, sheltered outdoor area made for relaxing and entertaining - it's a home that truly works with you. With eco-friendly features including solar power, established gardens, and a focus on sustainable living, this home offers a lifestyle that feels as good as it looks. With space for the whole family, beautiful established grounds, and a peaceful setting across from a reserve, this is more than just a house… it's a place to call home.
Property Features:
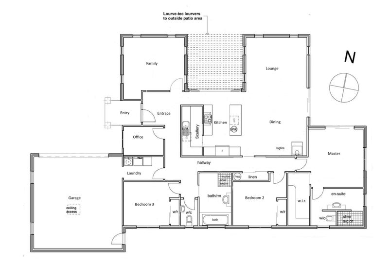
- 3 bedrooms + dedicated office
- 2 bathrooms + separate toilet
- 2 living areas + excellent indoor-outdoor flow
- Designer kitchen with walk-in pantry & double ovens
- Open plan living with wood burner + heat pump + DVS System
- Home is wheelchair friendly
- Covered deck with louvre system & outdoor bar area
- Established fruit trees, veggie gardens & greenhouse
- Double internal access garage + attic storage
- Reserve outlook + added privacy
With 17 solar panels already in place, this home offers an eco-conscious lifestyle with long-term benefits. Established vegetable gardens and a variety of fruit trees further enhance the property - thoughtful additions that complement the overall design and functionality of the home.
Homes like this - where comfort, functionality and lifestyle come together so effortlessly - are always in demand.
We would love to show you through. Get in touch today or come along to one of our open homes.
OPEN HOME: Sunday 1pm - 1:30pm DEADLINE SALE: 12 May 2026 at 12pm (unless sold prior)
Please be aware that this information has been sourced from third parties. View our property information disclaimer here: raineandhorne.co.nz/property-disclaimer
Open home times
- to
- to
Property Files

Discover more about this property.
Request the files from Eddie.
Local Schools
While we've done our best to correctly list schools in this location, school zone information may not be exact, so please double check with the school.
Agent's details


























