


Listing Description
New Family Home in Rolleston - Building Started
101 Scout Street, Rolleston, Selwyn, Canterbury
Asking price $875,000
Details
| Attribute | Value |
|---|---|
| Property type | House |
| Broadband in the area |
Description
Brand New Que Homes Build in Broadfield Grange – Under Construction
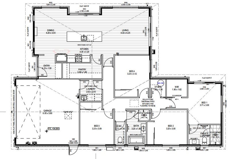
4 bed | 2 bath | 2 garage | 460m² (approx) Section
Secure this premium to be built home by trusted local builder Que Homes, located in the highly sought-after Broadfield Grange subdivision. Titles issued now and construction is well under way, this turnkey package is perfect for families, investors, or first-home buyers wanting quality, space, and convenience.
Home Features:
4 well-proportioned bedrooms including master with walk-in robe and tiled ensuite shower
Spacious open-plan kitchen, dining & living area.
Designer kitchen, walk-in pantry & Fisher & Paykel appliances.
Stylish main bathroom with freestanding bath & separate toilet.
Large tiled ensuite shower.
Double internal access garage with walk through laundry.
Heat pump included for year-round comfort.
Fully insulated, double glazed & landscaped (to meet developers approval)
Quality Que Homes construction!
Turnkey package – just pay the deposit and the rest on completion!
Why Broadfield Grange?
Minutes from Te Ara Atea Library, Rolleston town centre, and Selwyn Aquatic Centre
Easy access to Christchurch via the Southern Motorway
Family-friendly community with parks, reserves and walkways
This thoughtfully designed home combines style, comfort, and function — all with the reassurance of a proven local builder and a stress-free turnkey process.
Contact us today for more information.
Don’t wait — Broadfield Grange homes are selling fast!
Open home times
Property Files

Discover more about this property.
Request the files from Brendon.
Agent's details








