


Listing Description
Listed: Mon, 10 Nov
Character, Location and much more ...
35A Whitemans Road, Silverstream, Upper Hutt, Wellington
To be sold by auction on 3 Dec, 12:00 pm
Details
Other Features
| Attribute | Value |
|---|---|
| Property type | House |
| Capital value (CV) | $1,210,000 |
| Agency reference | UH26525 |
| Broadband in the area |
Description
Owners instructions are clear, forget the online values we want to be sold!
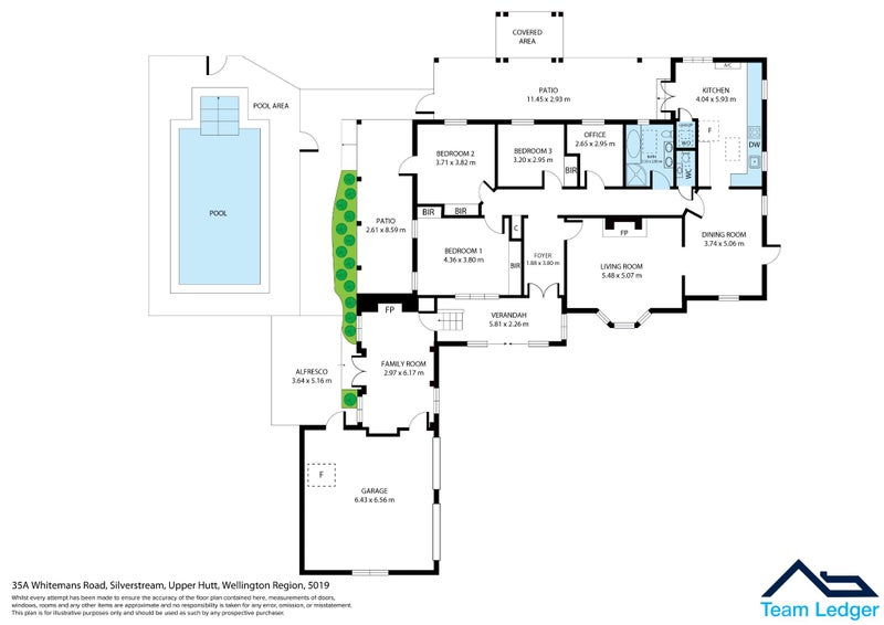
Originally built in 1926 for a supervisor at the Silverstream Kiln Works, this double brick home is meticulous for its age, while still having some original features such as the brick and character steel windows, it has also been modernised and added to.
- Now at approx 240sqm this home offers 4 bedrooms or 3 and a study, a beautiful modernised bathroom and spectacular kitchen.
- It has 2 toilets for convenience.
- Multiple living areas including formal and informal dining, lounge, sun-room/conservatory and second living that leads out to pool and garden.
- Heat pump, central heating, open fire, ventilation system.
- Native timber floors.
- Sitting on more than 1500sqm of park like grounds and gardens, fruit trees and raised vege beds, ideal property for garden lovers.
- A double garage and workshop area as well as a carport and additional off street parking.
- In ground swimming pool, fully fenced.
- Walking distance to Silverstream Village, train station, schools and parks.
- Elevation, sunshine and privacy.
- Builders report and LIM available.
Call Team Ledger to view as the owners will consider all offers either cash or conditional prior to auction day.
Auction at Harcourts Lower Hutt, 12.00pm on 3rd December 2025 unless sold prior.
Download documents on http://www.agentsend.com/35awhitemansroad
Open home times
Sat, 22 Nov
Sun, 23 Nov
Request a viewing
Property Files

Discover more about this property.
Request the files from Scott.
Agent's details

Scott Ledger
Mike Ledger
Enquire about the property
Platinum Partner
Learn MoreTeam Group Realty Limited, Harcourts Upper Hutt, (Licensed: REAA 2008)
Share this listing
Facebook
Twitter





































