


Listing Description
SAVE BIG – BUILD YOUR DREAM HOME NOW!
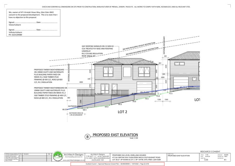
Lot 2/4&6 Mataki Way, Glen Eden, Waitakere City, Auckland
Details
| Attribute | Value |
|---|---|
| Property type | Section |
| Agency reference | 911220 |
Description
Dreaming of a brand-new home in a top location? Here’s your golden opportunity to save money, build instant equity, and secure your future!
Zoned for sought-after schools – Kaurilands Primary, Glen Eden Intermediate & Green Bay High.
Four freehold sections up for grabs – each comes with house plans for stunning 150m² freestanding, two-storey homes with a lockup garage, included as part of resource consent!
All sections offer suburban and Waitakere views – ready for you to start planning and get building! Watch your vision come to life in a quality neighbourhood.
Nestled in a premium pocket right on the edge of New Lynn and Titirangi – Mataki Way is a modern subdivision lined with stylish, high-end homes and a stylish childcare centre.
Conveniently located within a short stroll to the Glen Eden village that offers popular cafes, takeaways, restaurants, shops, train station and much more.
Act fast – these sections won't last long! Make an offer and let’s get you building your dream home.
Call me now to view and get more information – opportunities like this don’t come often!
Open home times
Local Schools
While we've done our best to correctly list schools in this location, school zone information may not be exact, so please double check with the school.
















