


Listing Description
THE DEAL
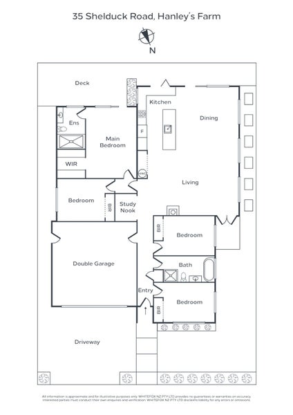
35 Shelduck Road, Hanley's Farm , Jacks Point, Queenstown-Lakes, Otago
To be sold by deadline sale (by 26 Nov)
Details
| Attribute | Value |
|---|---|
| Property type | House |
| Agency reference | 0251 |
Description
THE DEAL
Thoughtfully designed for effortless living and easy entertaining, this modern home offers the perfect blend of comfort, convenience, and low-maintenance living.
From the moment you step inside, you’re guided by sleek flooring that draws you through to the open-plan living, kitchen, and dining area — the heart of this beautiful home.
Look up, and you’ll notice the stunning tongue-and-groove high ceilings adding height and character, while skylights allow natural light all day long. Large sliding doors open wide to an infinity deck, where the indoors flow effortlessly outside — perfect for entertaining friends or simply unwinding with the view. To the north, a lush lawn invites you to kick off your shoes, let the kids or pets play, or just soak up the sun.
In the kitchen, every detail has been designed to impress — from the engineered stone benchtops to the handleless cabinetry and elegant pendant lighting tying the space together.
All around you, carefully placed high windows frame glimpses of the landscape beyond, reminding you of the home’s stunning natural setting.
Just off the living area, a clever study nook provides a quiet place to work or study. Comfort is effortless year-round thanks to ducted heating and cooling — all wirelessly controlled — while a Woodsman wood burner adds that cozy touch through the cooler months.
Down the hallway, three guest bedrooms each feature built-in wardrobes and share a beautifully finished main bathroom, complete with timber panelling, full-height tiling, and underfloor heating.
The primary suite feels like a private retreat, with its warm timber detailing, walk-in wardrobe, and a fully tiled ensuite — also with underfloor heating. Step directly outside from here and enjoy a peaceful moment to yourself.
Finishing the home is a carpeted double garage with attic access and laundry — practical, functional, and in keeping with the home’s refined design.
SEALS THE DEAL
Step onto your infinity deck and take in the stunning reserve outlook — a perfect snapshot of the Queenstown lifestyle.
For Sale via Deadline Closing Wednesday 26 November at 1pm (unless sold prior).
Disclaimer - The website may have filtered the property into a price bracket for website functionality purposes. All prospective purchasers shall complete their own due diligence, seek legal and expert advice, and satisfy themselves with respect to information supplied during the marketing of this property, including but not limited to: the floor and land sizes, boundary lines, underground services, along with any scheme plans or consents.
Open home times
Property Files

Discover more about this property.
Request the files from Matt.
Agent's details























