


Listing Description
7 Aparangi Drive, Aparangi Village
7 Aparangi Drive, Te Kauwhata, Waikato, Waikato
Asking price $749,000
Details
| Attribute | Value |
|---|---|
| Availability | Available now |
| Property type | Villa |
| Viewing instructions | Open to view Monday - Friday from 9am-4pm, or call Andrew to arrange a weekend viewing on 027 248 5900 |
| Parking | 1.5 single internal garage |
| Care services available? | Yes |
Yes | |
2041404 | |
| Property ID# | JKJ180 |
| In the village | Community meeting space, Bowling Club, Petanque |
Description
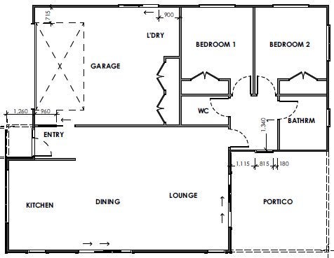
Welcome to your brand-new home — thoughtfully designed for comfort, functionality, and modern living.
Step through the sheltered entrance into a light-filled open-plan living, dining, and kitchen area — the true heart of the home. The living room opens effortlessly through stacker doors to a large covered portico, perfect for year-round entertaining.
Enjoy comfort in every season with a heat pump in the living room, and keep things sleek with a hidden cupboard for your TV fittings. The dining area also flows outdoors through stacker doors to a private patio, complete with a privacy screen for relaxed alfresco dining.
The kitchen is designed for everyday ease, featuring a breakfast bar, under-bench oven, cooktop, full dishwasher, and microwave shelf. With ample cabinetry, hidden bins, and a pantry, storage and style go hand in hand.
The home offers a master bedroom and a spare bedroom, both designed for quiet comfort. The bathroom includes an accessible wet-floor shower, wall-hung vanity, heated towel rail, and heat lamp, while the separate toilet features its own basin for convenience.
Practical touches complete the picture — a house alarm, solar panels for energy efficiency, and quality materials including a concrete tile roof, timeless brick exterior, and double-glazed aluminum joinery.
Inside, a 1.5 internal garage provides extra storage space, with the laundry and hot water cupboard neatly built in. Outside, a storm water tank helps reduce environmental impact, with low maintenance gardens surrounding the home.
This is modern living made easy — combining smart design, sustainable features, and lasting quality.
Priced at $749,000. To view this property or any of the other’s available, please contact Andrew on 027 248 5900 or ceo.tkretire@aparangi.co.nz

















