


Description
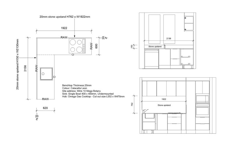
Ex Display Kitchen All the cabinets are fully assembled. All Base Cabinet and Tall Cabinets are in Melteca Shou Sugi Organic Finish with 1mm Edging and Wall Cabinets (Power pack Range hood side) is Melteca Seasoned Oak Naturale with 1mm Edging. LED Light under the Wall Cabinet (Power pack range-hood. Internal Drawer Pantry with Blum Space Tower. 2 x One2five bin 17ltrs each 1 x Base Dulpo Return Pull Out 1 x Under-Mounted Eco- Granite Sink 20mm Stone benchtop with Stone Splash back
New Zealand Made Product.
Measurements: 2175mm x 2975mm.
Appliance not included.
Buyer must pickup from Bishop Dunn Place, Flat Bush .
Check out my other listing.
Removable and installation at buyers responsibility.
Must be gone by 5th of December 2025. Please do not Bid if you can't remove and collect by the due date.
You are welcome to make an offer.
Contact Sagar on 02102307491 for any queries.
Details
Shipping & pick-up options
| Destination & description | Price | |
|---|---|---|
| Buyer must pick-up from Waitakere, Auckland | Free | |
Payment Options
Cash












