


Listing Description
Harbourside Headquarters - New Offices
11 Westhaven Drive, City Centre, Auckland City, Auckland
Price by negotiation
Details
| Attribute | Value |
|---|---|
| Property use | Office |
| Agency reference | NZL67028880 |
Description
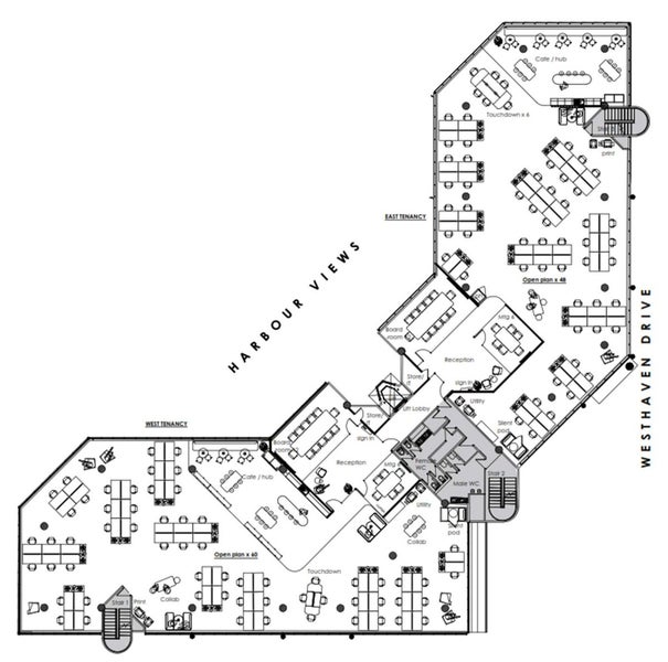
Boutique waterfront Offices for upto 120 desks | Now Leasing on Auckland’s Marina Edge Harbourside Headquarters on Auckland CBD waterfront. Few locations bring together the rare combination of connectivity, character and the waters edge and Cracker Bay offers them all. With uninterrupted western views over Westhaven Marina, Cracker Bay delivers an elevated workplace experience designed for inspiration, performance and balance. With uninterrupted western and city views, excellent natural light and an efficient, modern layout, Level 1 offers a workplace designed to support productivity, collaboration and staff wellbeing Available Now – Level 1 Offices:
- Level 1 - 1,192 sqm (120 staff)
Key Features
- Waterfront location with marina outlooks
- Brand new fitout with private entry and welcoming front-of-house
- Secure basement parking and End-of-trip facilities
- Walkable to Victoria Park, North Wharf and CBD amenity
- BRAVO waterfront restaurant opening Q1 2026
A Smarter Alternative to Traditional CBD Towers The West Suite delivers the quality and outlook of a premium CBD office, without oversized floorplates or unnecessary corporate overhead. Making it an ideal solution for growing businesses seeking a flagship workplace. Rent: Competitive waterfront rents relative to prime CBD vacancies Enquire Now - For floorplans, indicative rents or to arrange a viewing, contact the joint Master sole agents: Chris Palmer - chris.palmer@colliers.com - 021558355 Charlie Stow - charlie.stow@colliers.com - 021 812 559
More information: https://www.colliers.co.nz/p-NZL67028880
Property Files

Discover more about this property.
Request the files from Chris.



















