Skip to site navigation Skip to main content
main content
Sold on 16 Mar 2026

35 Wickman Way, Mangere East, Auckland

SOLD: $790,000
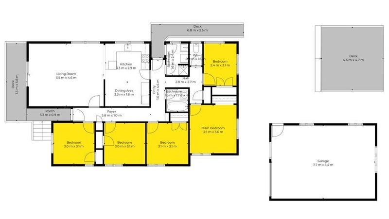
  • 5 Beds
  • 1 Bath
  • 1 Park

Property details

Freehold
123m² more or less
658m² more or less
5 Bedrooms
1 Bathroom
1 Garage parking
Track home card illustration

Stay updated on this property!

Receive updates on value estimates and be the first to know if it goes on sale.

HomesEstimate

Updated today

Updated: 14 May 2026

$765K - $860K

What is the HomesEstimate?

RentEstimate

Updated: 02 May 2026

$620 - $730 /week

Rental yield

4.3%

What is rental yield?

Sale history timeline

Local Schools

  • IN ZONE

    237 Buckland Road

    325 m

    Composite (Year 1-13) (Primary, Intermediate & Secondary), State, 1694 enrolled


  • IN ZONE

    21 Yates Road

    771 m

    Full Primary (Primary & Intermediate), State, 565 enrolled


  • UNZONED

    44 Chelburn Cresent

    226 m

    Homebased Network (Early Childhood), Privately owned, 50 enrolled


While we've done our best to correctly list schools in this location, school zone information may not be exact, so please double check with the school.

Thinking of selling?Determine your property's value with an appraisal
We are upgrading some of our systems
Learn more