7 Waipuna Grove, Stokes Valley, Lower Hutt
SOLD: Sale price to be provided
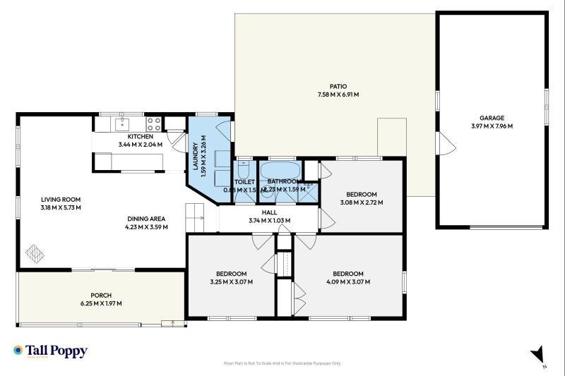
Property details
Freehold
100m² more or less
824m² more or less
3 Bedrooms
1 Bathroom
1 Garage parking
Stay updated on this property!
Receive updates on value estimates and be the first to know if it goes on sale.


Tall Poppy Lower Hutt
Suzie Webster
Recent sales
2
Experience
11y 7m
Sale history timeline
16 April 2026
Sold
$TBC
Provided by agent

01 August 2025
Capital Value
$530,000
01 September 2022
Capital Value
$530,000
01 September 2019
Capital Value
$385,000
07 June 2019
Sold
$N/A
01 September 2016
Capital Value
$250,000
01 September 2013
Capital Value
$220,000
01 August 2007
Sold
$N/A
15 October 2000
Sold
$86,000
24 June 1989
Sold
$94,000
01 January 1970
Decade built
1970
Local Schools
While we've done our best to correctly list schools in this location, school zone information may not be exact, so please double check with the school.
Nearby Sold Properties
View all
Properties for sale around Stokes Valley
View all

















































