


Listing Description
"NO TIME TO WASTE, VENDORS SAY SELL"
11A Aroha View Avenue, Te Aroha, Matamata-Piako, Waikato
Details
| Attribute | Value |
|---|---|
| Property type | House |
| Parking | 1 carport |
| Broadband in the area |
Description
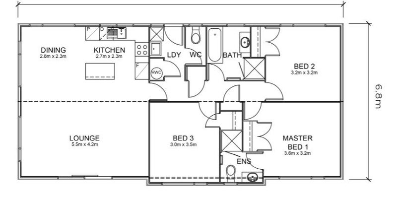
ALL OFFERS CONSIDERED, BOOK YOUR INSPECTION TODAY! Introducing this affordable brand new 3-bedroom home with three generous bedrooms, master with ensuite, modern open plan living and stunning views of Mt Te Aroha.
This stylish home sits on a generous 450m2 level section ideal for families, investors, first home or last home buyers seeking an easy care lifestyle or lock and leave. CCC now complete with an opportunity to create your own garden beds with plenty of space for play areas and storage.
This property is ideally located close to excellent schooling options, sports facilities and shops with the historic town of Te Aroha renown for it's mountainous beauty offering incredible hiking opportunities and famous for its natural hot springs and the world's only natural soda geyser in the Southern Hemisphere.
Te Aroha has a rich gold mining heritage dating back to the 1880s with beautifully preserved Victorian architecture with the local Domain featuring historic Edwardian buildings and therapeutic mineral baths. Annual community events include A Day in the Domain, King and Queen of the Mountain challenge, and the popular AP & H Show to name a few.
Whilst the town serves as a hub for the surrounding dairy farming community it is ideally located just 53km northeast of Hamilton and 50km south of Thames, providing easy access to larger centers while maintaining that sought-after rural lifestyle. DON'T MISS THIS OPPORTUNITY TO PURCHASE THIS AFFORDABLE BRAND NEW FIRST OR LAST HOME!
Open home times
Property Files

Discover more about this property.
Request the files from Sharon.
Local Schools
While we've done our best to correctly list schools in this location, school zone information may not be exact, so please double check with the school.
Agent's details





























